

S3D ENGINEERING
Bureaux d'études-
Afficher toutes les photos
+ 2
-
-
-
-
-
Contact
- 9 Rue de Condé 33000 Bordeaux Rayon de 250 km
-
-
-
Présentation
S3D Engineering – Réseau National® de Scan 3D Bâtiment
Certifié ISO 9001 | Présence internationale | Standards de qualité élevés
S3D Engineering est un réseau international de spécialistes du scan 3D haute densité, fort de 20 agences :
16 en France
2 en Espagne
1 en Belgique
1 au Gabon
Nous accompagnons les entreprises du BTP, de l’industrie, de l’énergie, du nucléaire et du Oil & Gas dans leurs projets de numérisation, 7j/7, en leur garantissant un haut niveau d’exigence et une qualité constante, partout dans le monde.
🔧 Nos expertises 3D :
Relevé 3D & Nuages de points
Précision millimétrique avec scanners FARO S150 & BlinkModélisation BIM (LOD 100 à 500)
Modèles structurés et compatibles avec tous les logiciels métiersPlans 2D/3D & DAO
Architecture, tuyauterie, assemblages mécaniques, DOEVisites virtuelles interactives
Online et offline, pour le suivi de chantier ou la documentationRétro-conception CAO
Création de fichiers techniques à partir de pièces existantesCalculs de structure
Béton, métal, bois, alu – réalisés et validés par ingénieurs certifiésImagerie multispectrale
Thermographie, détection d’humidité, anomalies invisiblesElectricité & hydroélectricité
Études BT/HT, plans d’équipements et centrales
✅ Pourquoi choisir S3D Engineering ?
Certification ISO 9001:2015
Garantie décennale sur tous les livrables
Certification ISO 19650-1 (en cours)
Équipes locales, réactives et formées aux normes industrielles
Processus de sécurisation des données sur hébergement souverain
📌 Notre méthode en 3 étapes :
Capture 3D de haute précision
(technologie FARO S150, BLINK, STONEX X120 GO)Traitement et sécurisation des données
(workflow offline, hébergement sécurisé en France)Production de livrables
(plans DWG, maquettes IFC/REVIT, compatibles tous logiciels CAO/BIM)
🤝 Un partenaire fiable pour vos projets critiques
Faites le choix d’un réseau structuré et certifié, capable d’intervenir rapidement, avec la rigueur et la fiabilité exigées par les environnements complexes.
📞 Contactez-nous au 09 72 76 24 47
🌐 www.s3dengineering.net
Réalisations
Note de calcul (7)
-
-
-
-
-
+ 2
Modelisation BIM (19)
-
-
-
-
-
+ 14
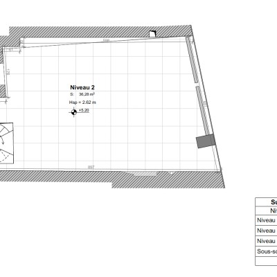
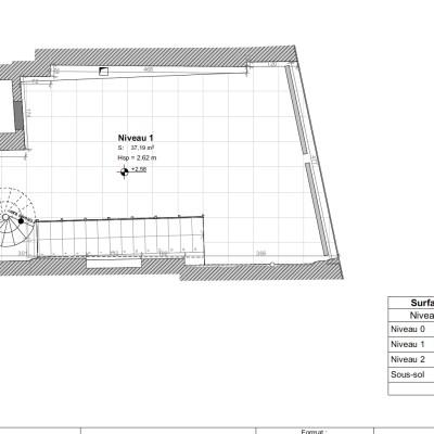
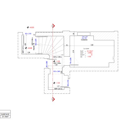
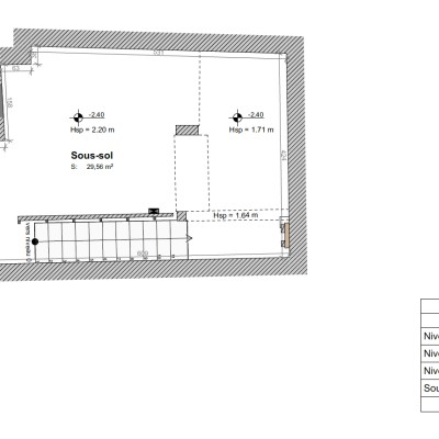
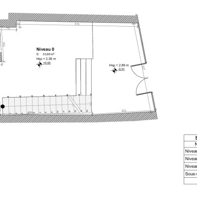
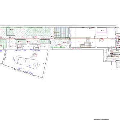
Plans 2D PDF ET DWG (11)
-
-
-
-
-
+ 6
Plans de masse (3)
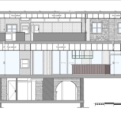
Plans de Coupe (2)
Plans de fabrication (5)
Plans Isometrique (5)
Plans PID (4)
Plans de tuyauterie (4)
Nuages de Point 3D (4)
Plans de Facades (7)
-
-
-
-
-
+ 2
Plans de fabrication (9)
-
-
-
-
-
+ 4
Modélisation BIM Industrielles (7)
-
-
-
-
-
+ 2
Notre Materiel (6)
-
-
-
-
-
+ 1
Charpente métalique (1)
Scan 3D (5)
Images (2)
BIM (4)
S3d Engineering (13)
-
-
-
-
-
+ 8
Plans de ferraillage (6)
-
-
-
-
-
+ 1
Équipe
-
Nicolas CAPELLE Modeleur BIM
-
Eric Agence de Bordeaux Sud
-
Marcel Agence de Cherbourg
-
Anais Comunication
-
Corentin Informatique
-
Lorie Acceuil telephonique
-
Joffrey Responssable Pilotage
- Fredric Agence Sud Est
-
Sophie Agence de Toulouse
-
Jose Expert retro-conception
-
Mahmoud Agence auvergne-Rhône-Alpes
-
stephan Agence de Libreville (Gabon)
-
Stephane Agence de Lille
Prestations
Bureaux d'études (7)
- Réalisation de plans d'exécution
- Dimensionnement des structures
- Dimensionnement des fondations
- Conception technique
- Bureau d'études thermiques
- Bureau d'études technique
- + 1
Certifications
-
ISO 9001 25/02/2025
Associations
-
FNTB 2025-02-18T13:39:53.926Z
Horaires
- Lundi 09:00 - 19:00
- Mardi 09:00 - 19:00
- Mercredi 09:00 - 19:00
- Jeudi 09:00 - 19:00
- Vendredi 09:00 - 19:00
- Samedi 09:00 - 19:00
- Dimanche Fermé
Avis clients (9)
Evaluation globale
Relation client
4,8Qualité / Nettoyage
5Respect des délais
4,9Qualité / Prix
4,7Etat des lieux
Réalisation de plusieurs scans pour états des lieux de locaux de stockages/batiments bureau.
Merci beaucoup Corentin pour votre retour positif ! Nous sommes ravis d’avoir pu vous accompagner dans la réalisation des états des lieux grâce à notre technologie de scan 3D haute précision. Cette méthode permet de capturer rapidement et fidèlement l’ensemble des volumes et détails, que ce soit pour des locaux de stockage ou des bâtiments tertiaires. Grâce à notre équipement de dernière génération, vous bénéficiez de données fiables, exploitables en 2D et 3D, idéales pour les projets de réaménagement, de valorisation ou d’archivage technique.
Au plaisir de collaborer à nouveau sur vos prochains projets !
Plan industrie
Plans avec identification des éléments sureté
Merci Jérôme pour votre confiance et votre retour positif ! L’identification précise des éléments de sûreté dans un environnement industriel exige une rigueur absolue : notre solution de scan 3D haute résolution permet de générer des plans ultra-fiables, intégrant tous les équipements critiques avec exactitude. Grâce à cette technologie, nous garantissons une traçabilité optimale pour la sécurité des sites sensibles, tout en assurant une compatibilité avec vos logiciels de gestion de plans ou de maintenance.
Un plaisir d’avoir contribué à votre projet, au service de la sûreté industrielle !
maison st cannat
travail sérieux et rapide le rendu est vraiment parfait pour permettre le travail de l'architecte
Merci beaucoup Alexandre pour votre retour positif ! 🙏 Nous sommes ravis que notre relevé 3D à Saint-Cannat ait pleinement répondu à vos attentes. 🎯 Chez S3D Engineering, nous mettons un point d'honneur à offrir un service rapide, précis et parfaitement adapté aux besoins des architectes. 🏗️✨ Votre satisfaction est notre plus belle récompense !
🔎 Scan 3D certifié ISO 9001 – Saint-Cannat | Relevé architectural & modélisation BIM Besoin d’un relevé 3D ou de plans précis pour vos projets de rénovation ou de construction ? Contactez nos équipes locales. 📞
Rayon d'intervention
- Toulouse
- Bordeaux
- Limoges
- Poitiers
- La Rochelle
- Pau
- Mérignac
- Pessac
- Montauban
- Niort
- La Roche-sur-Yon
- Cholet
- Bayonne
- Albi
- Les Sables-d'Olonne
- Brive-la-Gaillarde
- Talence
- Tarbes
- Angoulême
- Anglet
Informations financières et juridiques
- Informations financières et juridiques non disponibles
- Ville : Bordeaux
- Département : Gironde
- Région : Nouvelle-Aquitaine